משלמים
החל מ
265,500 ₪
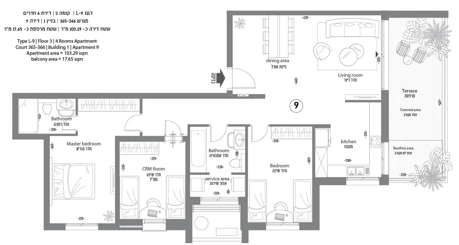
ויש לכם דירת 4 חד'
*היתרה בתנאי מימון מיוחדים
מבצע ל-5 דירות בלבד
בפרויקט הבוטיק הנחשק
נתיב בנווה שמיר
החל מ-
2,655,000 ₪
הבניה בעיצומה
בנייני יוקרה מעוצבים
ברמת בית שמש ה'
* בכפוף לתנאי החברה ט.ל.ח
דירות 4 חד',
דירות גן ופנטהאוזים
מפרט עדכני
ועשיר
* בכפוף לתנאי החברה ט.ל.ח
עד 3 דירות
בקומה
לפרטים נוספים:
שם
אימייל
טלפון
שליחה ←
דיגיטל: סמארט קליק
בניה: סטודיו שיר